Urbanism

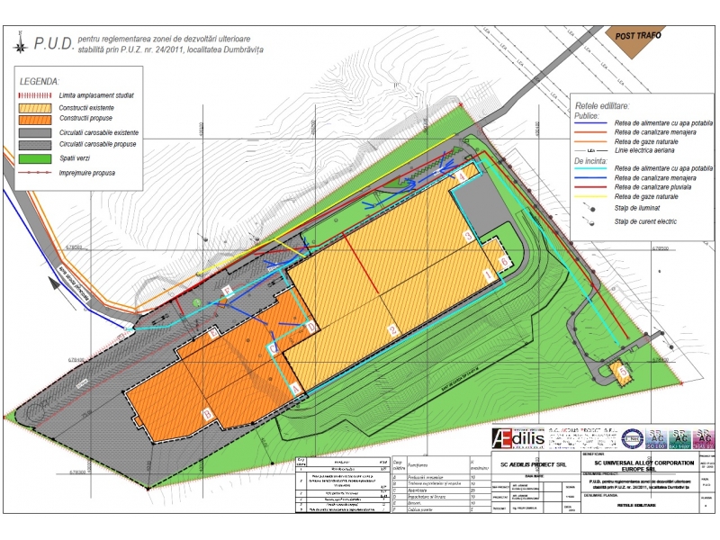
Plan Urbanistic Zonal Fabrica Componente Aeronautice

Plan Urbanistic Zonal Fabrica Componente Aeronautice

 

VIZIUNE

Credem in identitatea culturala a spatiului, de aceea promovam protejarea valorilor de patrimoniu si incurajam, prin proiectele noastre, perpetuarea valorilor autentice. Cu o experienta de peste 10 ani in domeniul proiectarii si consultantei pentru obtinere de fonduri europene, consideram ...

vezi mai departe +

ECHIPA AEDILIS PROIECT

FLORUȚ FLORIN DAN

director general

FAUR CAMELIA

director tehnic

CIOLTEA IOHANA

arhitect

KRISZTINA MOIS

Arhitect

vezi toata echipa companiei